
Casa Ursus 2
A casa de madeira perfeita para quem deseja charme rústico e aconchego em cada detalhe.

Interior da Casa
O interior desta casa de luxo em madeira rústica impressiona em cada detalhe. As paredes de madeira nobre exibem texturas naturais que ressaltam a beleza dos veios, enquanto o teto alto com segundo piso amplia a sensação de amplitude e sofisticação. Móveis sob medida, feitos em marcenaria fina, harmonizam design contemporâneo com o charme rústico, criando um ambiente elegante e acolhedor.

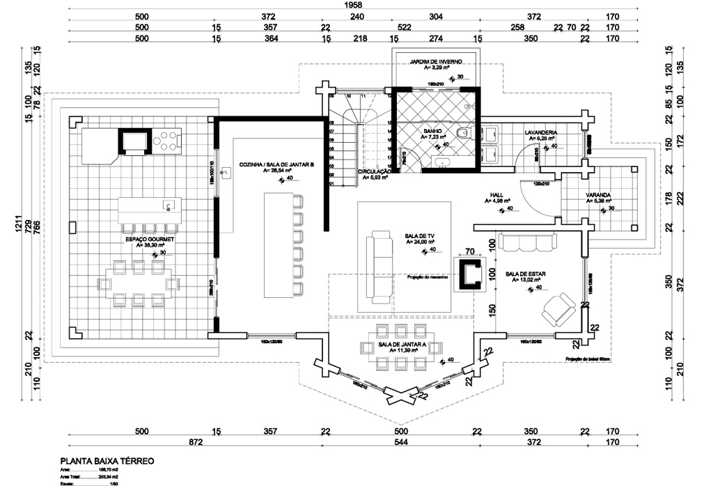
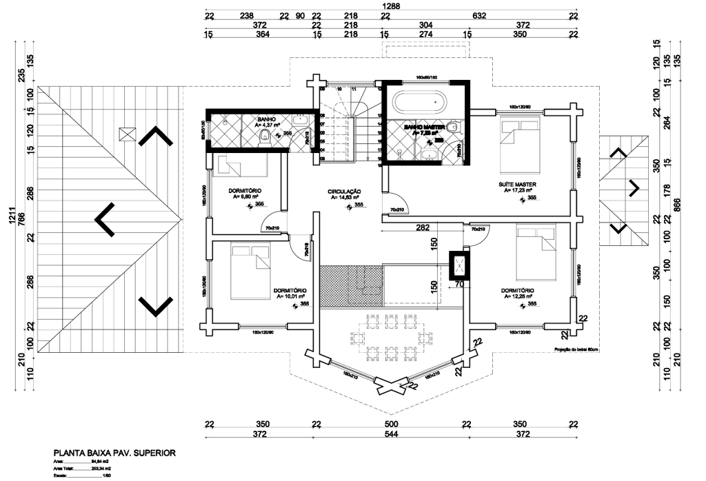
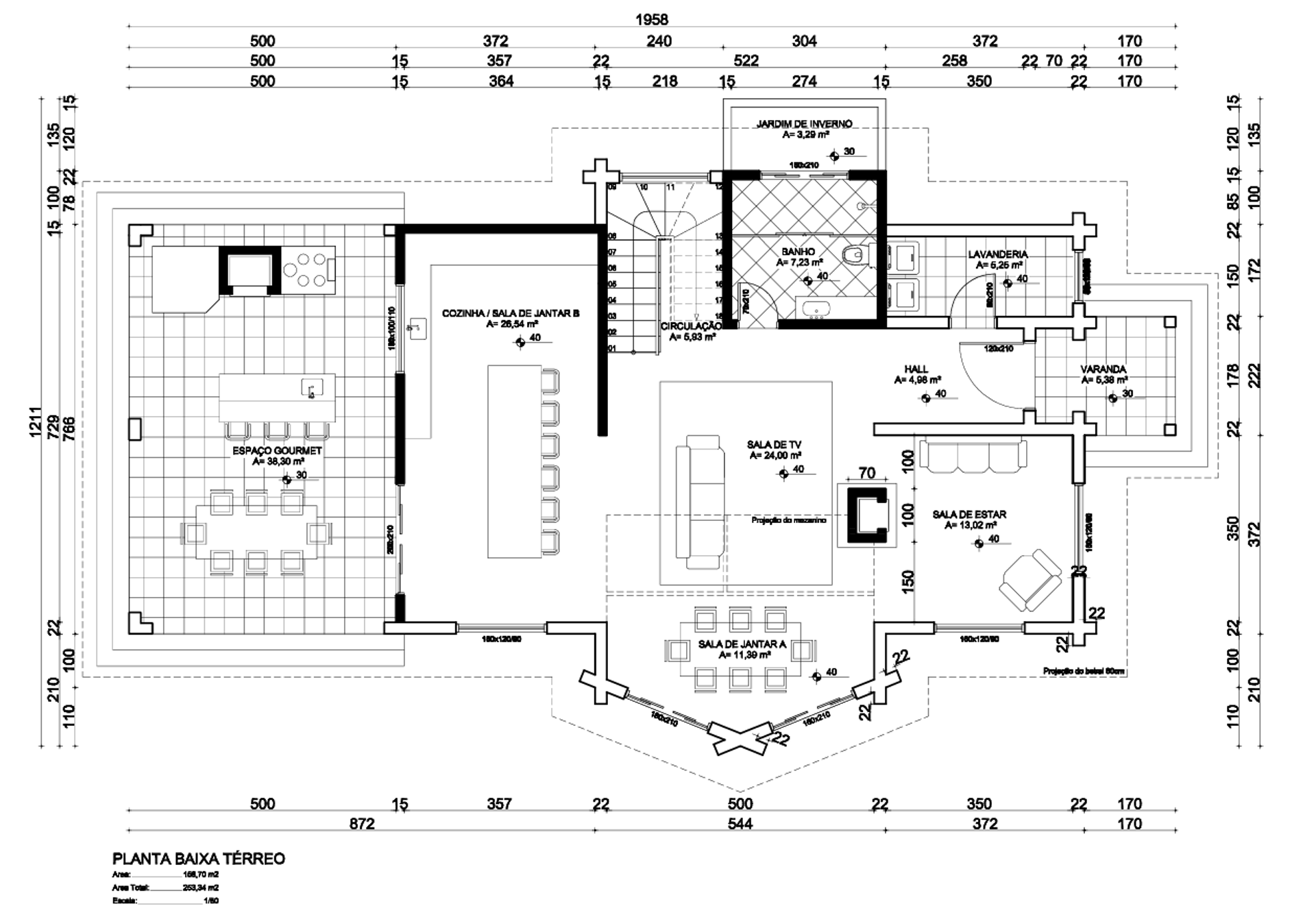
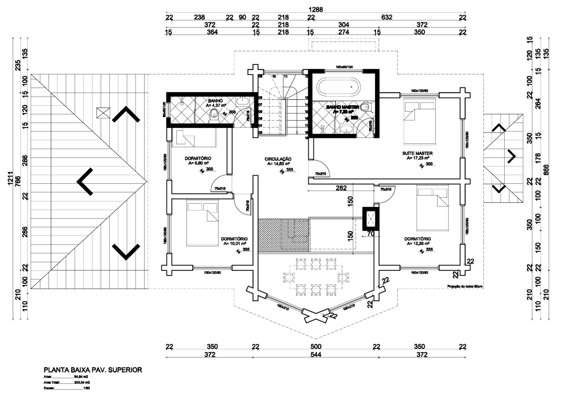
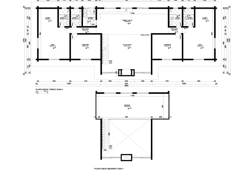
Planta Baixa
Casa Ursus 2
Casa de madeira rústica com amplas paredes envidraçadas e detalhes em pedra natural, perfeita para quem busca sofisticação em meio à natureza.








Interior
O interior desta casa de luxo em madeira rústica impressiona em cada detalhe. As paredes de madeira nobre exibem texturas naturais que ressaltam a beleza dos veios, enquanto o teto alto com segundo piso amplia a sensação de amplitude e sofisticação. Móveis sob medida, feitos em marcenaria fina, harmonizam design contemporâneo com o charme rústico, criando um ambiente elegante e acolhedor.










Planta
















